Aller à :

  • Aller à la recherche
  • Aller au menu principal
  • Aller au contenu
0
  • Accueil
  • Ventes
  • Locations
    • Bureaux
    • Locaux commerciaux
    • Dépôts / entrepôts
    • Autres biens
  • NOS BIENS VENDUS
    ET LOUÉS
  • ALERTE E-MAIL
  • Contact
0
  • Acheter
  • Louer De l'immo pro
Créez votre alerte e-mail
Dans un rayon de
Loyer
Mini €
Maxi €

    Faites estimer votre bien par un professionnel

    Estimer votre bien
    1. Accueil
    2. Location pro
    3. Le lamentin
    4. Bureaux
    Nouveauté
    Bureaux
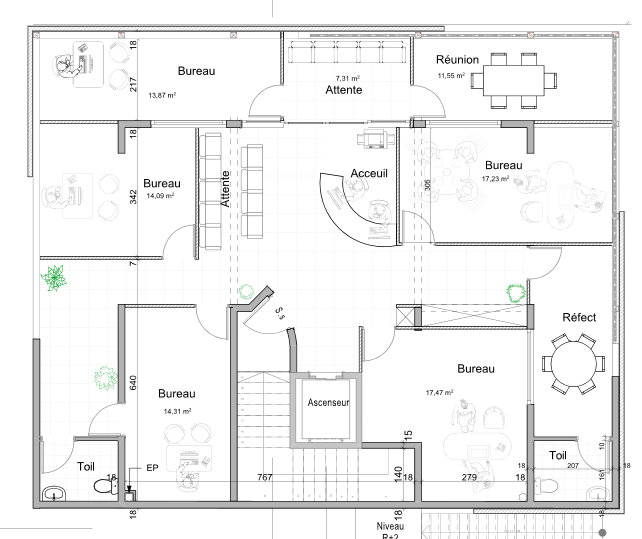
    Bureaux de 165m² au R+3 en rooftop - ACAJOU
    Nombre de pièces 3
    3 760 € / mois HT - HC*

    * Hors charges

    Bureaux de 165m² au R+3 en rooftop - ACAJOU Lamentin (97232)

    Cadre agréable pour ces locaux dans un Centre d'Affaires moderne et convivial.

    Bureaux situés au R+3 accessibles aux PMR

    Réaménagement à prévoir selon plans en ex, composés de bureaux individuels et open-space, salle de réunion, sanitaires privatifs et espace social.

    Immeuble sécurisé avec interphone, ascenseur et des places de parking privatives

    Accès routiers multiples permettant de se déplacer très rapidement.



    Les informations sur les risques auxquels ce bien est exposé sont disponibles sur le site Géorisques
    • Général
    • Détails +
    • Copropriété
    • Financier
    • Activité
    • DPE
    • Quartier
    Caractérisque Valeurs
    Type de Transaction Bureaux
    Code postal 97232
    Surface habitable (m²) 165 m²
    Nombre de niveaux 3
    Ascenseur 1
    Vue Dégagée
    Superficie (m²) 165
    Caractérisque Valeurs
    Quartier Acajou
    Caractérisque Valeurs
    Copropriété NON
    Caractérisque Valeurs
    Loyer HT 3 760 € / mois
    Dont état des lieux Non renseigné
    Dépot de garantie Non renseigné
    Charges locatives HT (provision donnant lieu à régularisation annuelle) 535 €
    Caractérisque Valeurs
    type d'activité - Divers
    DPE GES
    • Commerces et santé
    • Loisirs
    • Ecoles
    • Transports
    • Pratique
    Cette offre
    vous intéresse

    * champs obligatoires

    Les informations recueillies sur ce formulaire sont enregistrées dans un fichier informatisé par La Boite Immo agissant comme Sous-traitant du traitement pour la gestion de la clientèle/prospects de l'Agence / du Réseau qui reste Responsable du Traitement de vos Données personnelles. La base légale du traitement repose sur l'intérêt légitime de l'Agence / du Réseau. Elles sont conservées jusqu'à demande de suppression et sont destinées à l'Agence / au Réseau. Conformément à la loi « informatique et libertés », vous disposez des droits d’accès, de rectification, d’effacement, d’opposition, de limitation et de portabilité de vos données. Vous pouvez retirer votre consentement à tout moment en contactant directement l’Agence / Le Réseau. Consultez le site https://cnil.fr/fr pour plus d’informations sur vos droits. Si vous estimez, après avoir contacté l'Agence / le Réseau, que vos droits « Informatique et Libertés » ne sont pas respectés, vous pouvez adresser une réclamation à la CNIL. Nous vous informons de l’existence de la liste d'opposition au démarchage téléphonique « Bloctel », sur laquelle vous pouvez vous inscrire ici : https://www.bloctel.gouv.fr Dans le cadre de la protection des Données personnelles, nous vous invitons à ne pas inscrire de Données sensibles dans le champ de saisie libre.
    Ce site est protégé par reCAPTCHA, les Politiques de Confidentialité et les Conditions d'Utilisation de Google s'appliquent.

    Partager le bien
    Nos outils
    Imprimer Imprimer
    Calculatrice financière

    * Champ obligatoire

    Partager l'annonce

    * champs obligatoires

    Les informations recueillies sur ce formulaire sont enregistrées dans un fichier informatisé par La Boite Immo agissant comme Sous-traitant du traitement pour la gestion de la clientèle/prospects de l'Agence / du Réseau qui reste Responsable du Traitement de vos Données personnelles. La base légale du traitement repose sur l'intérêt légitime de l'Agence / du Réseau. Elles sont conservées jusqu'à demande de suppression et sont destinées à l'Agence / au Réseau. Conformément à la loi « informatique et libertés », vous disposez des droits d’accès, de rectification, d’effacement, d’opposition, de limitation et de portabilité de vos données. Vous pouvez retirer votre consentement à tout moment en contactant directement l’Agence / Le Réseau. Consultez le site https://cnil.fr/fr pour plus d’informations sur vos droits. Si vous estimez, après avoir contacté l'Agence / le Réseau, que vos droits « Informatique et Libertés » ne sont pas respectés, vous pouvez adresser une réclamation à la CNIL. Nous vous informons de l’existence de la liste d'opposition au démarchage téléphonique « Bloctel », sur laquelle vous pouvez vous inscrire ici : https://www.bloctel.gouv.fr Dans le cadre de la protection des Données personnelles, nous vous invitons à ne pas inscrire de Données sensibles dans le champ de saisie libre.
    Ce site est protégé par reCAPTCHA, les Politiques de Confidentialité et les Conditions d'Utilisation de Google s'appliquent.

    Détail des diagnostics énergétiques
    DPE GES
    DPE ANCIENNE VERSION

    Partager avec vos proches

    Facebook Facebook
    Messenger Messenger
    Twitter Twitter
    WhatsApp WhatsApp
    LinkedIn LinkedIn
    Copier le lien Copier le lien
    Se connecter
    Espace propriétaire
    Page d'accueil
    Adhérents

    © 2026 | Tous droits réservés | Traduction powered by Google |

    • Plan du site
    • Mentions légales
    • Admin
    • Nos liens
    • Politique RGPD
    • LinkedIn

    Comme beaucoup, notre site utilise les cookies

    On aimerait vous accompagner pendant votre visite. En poursuivant, vous acceptez l'utilisation des cookies par ce site, afin de vous proposer des contenus adaptés et réaliser des statistiques !

    Paramétrer

    Cookies fonctionnelsCes cookies sont indispensables à la navigation sur le site, pour vous garantir un fonctionnement optimal. Ils ne peuvent donc pas être désactivés.

    Statistiques de visitesPour améliorer votre expérience, on a besoin de savoir ce qui vous intéresse !
    Les données récoltées sont anonymisées.

    ?

    Google Analytics

    En savoir plus
    • Acheter
    • Louer De l'immo pro
    Créez votre alerte e-mail
    Dans un rayon de
      Loyer
      Mini €
      Maxi €
      Surface
      Mini m²
      Maxi m²
      Surface terrain
      Mini m²
      Maxi m²

      Secteur d'activité

      Particularites

      Afficher les biens

      Faites estimer votre bien par un professionnel

      Estimer votre bien